Save
Declared Price

$805,000

50 Terako Terrace, Mount Lyford Village 7395, New Zealand

EXAMPLE LISTING: Architectural Scandinavian retreat with panoramic mountain views
3 Bedrooms
1 Bathrooms
1 Lounges
5+ Carpark Spots
93 m² Property Footprint
4,000 m² Land Footprint

Property Floor Plan

Property Image 16

Property Description

A rare offering of exceptional quality and considered design, this architecturally crafted home stands as one of the finest builds in the area. Created with an uncompromising commitment to healthy, low-toxicity living, it has been recognised by Health Based Building Christchurch for both its sustainable materials and outstanding workmanship.

Inspired by modern Scandinavian principles, the home achieves a refined balance of minimalism, warmth and function. Every detail has been carefully resolved to maximise space and light while maintaining a modest footprint that sits effortlessly within the landscape. Positioned on an elevated, fully engineered platform, the home enjoys sweeping panoramic views across the Mason Hills, with the Kaikōura ranges and Whalesback visible from the master. Privacy is absolute, with no direct sightlines in while retaining uninterrupted outward vistas.

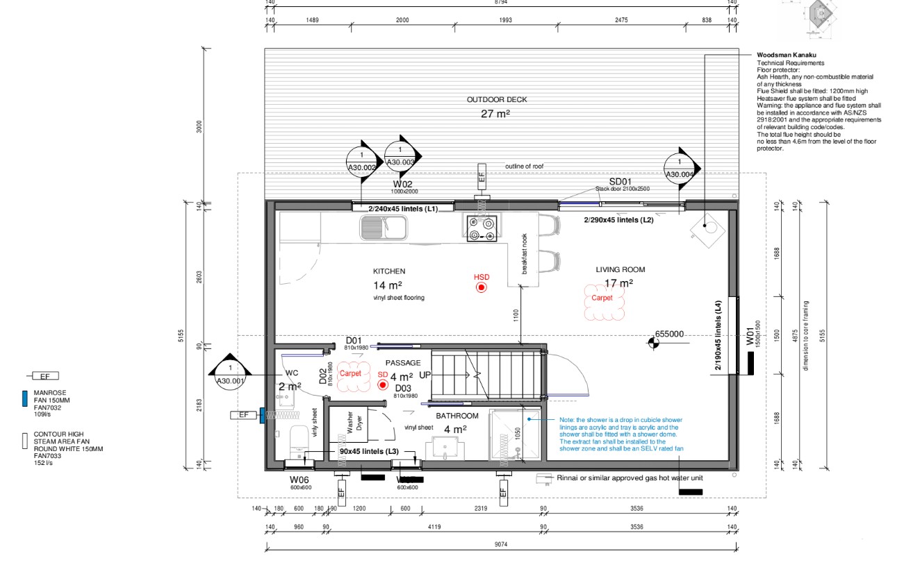
The approximately 93 square meter layout is intelligently arranged across two levels, offering three bedrooms, a mezzanine with impressive stud height, and a practical, light-filled living environment. Interiors are finished to an executive standard, with a beautifully appointed kitchen featuring a Tristone benchtop, custom pantry and quality appliances including Fisher and Paykel and Bosch. The bathroom is equally refined with St Michel fittings, bespoke cabinetry and high-spec detailing.

Craftsmanship is a defining feature throughout. Sustainably sourced New Zealand timber has been used extensively, finished in organic Danish oils to support a low VOC indoor environment. A hidden fixing system creates seamless timber finishes, complemented by rosehead nail detailing externally. Performance has been prioritised with double glazing, high-spec insulation including Terra Lana wool throughout internal walls, and solid core doors for enhanced comfort and acoustic control.

Year-round comfort is assured with two heat pumps, a Woodsman Kanaku wood burner and gas hot water. Infrastructure has been equally well considered, including an advanced wastewater system sized for future expansion, extensive drainage, and a robust, engineered building platform designed for long-term resilience.

Set on approximately 4,000 square meters, the grounds offer multiple usable areas and future potential for additional structures, with established native planting beginning to anchor the home into its surroundings. Dual driveway access provides practicality in all seasons, supported by a stormwater system, security features and backup power connection.

Lightly lived in and never rented, this is a home conceived and executed for longevity, efficiency and ease of living. A compelling opportunity to secure a truly superior property in Bellbird Brae.

Additional Features & Notes

1. By far one of the highest quality finished homes in the village, constructed with an exceptionally strong selection of executive-level materials and a clear focus on healthy, low-toxicity living. The property has been praised by the directors of Health Based Building in Christchurch for its use of sustainable materials and the quality of application

2. Architecturally designed, modern Scandinavian-inspired home built above standard specification, carefully planned to maximise internal space while minimising external footprint and blending into the landscape. The home is currently unoccupied, allowing full flexibility for settlement timing to suit the buyer

3. Post-construction building report available, along with the Code Compliance Certificate, providing assurance around build quality and compliance

4. Elevated position with expansive 160-degree panoramic views across the Mason Hills from the lounge, and the Kaikouras and Whalesback from the master bedroom, capturing sunrise and evening light displays

5. Exceptional privacy with no direct sightlines into the home, while maintaining uninterrupted outward views

6. Built on a fully engineered platform cut approximately 1 metre into terra firma and backfilled in controlled layers, providing outstanding structural integrity and resilience

7. No history of earthquake or flood damage, with design and groundworks specifically focused on long-term durability and natural disaster resilience

8. Three bedrooms, one bathroom, and one separate toilet, configured for practical family living

9. Mezzanine level with approximately 3.5 metre ceilings, enhancing light, volume, and spatial feel

10. Total floor area of approximately 93m² across two levels, with minimal wasted space and highly efficient layout

11. High-quality executive finish throughout, including premium appliances, fittings, and refined detailing

12. Full kitchen features a Tristone benchtop, custom-built pantry, full benchtop storage, and premium tapware

13. Includes Fisher & Paykel fridge, dishwasher, and stacked washer and dryer set, alongside a Bosch gas cooktop and electric oven

14. Bathroom fitted with St Michel vanities and basins from Mico, including custom cabinetry and high-spec shower fittings

15. Full laundry with integrated extraction systems

16. Brand new carpet installed throughout

17. Built using sustainably sourced New Zealand timber for both internal and external cladding

18. Finished with organic Danish oils (Foreverbreathe specification) for a low-VOC, healthier indoor environment

19. Fine craftsmanship throughout, including hidden fixing system (over 5,200 specialised clips) internally, eliminating visible joins on the full length new zealand pine

20. Premium external finishing with rosehead nails

21. Double glazed throughout with high-performance insulation, including approximately R7.3-R7.4 ceiling insulation

22. Terra Lana wool insulation installed in all internal walls for acoustic and thermal performance

23. Additional upgraded mid-floor insulation

24. Interior wall insulation approach, supported by solid core internal doors throughout

25. Heating and cooling provided by two heat pumps for air conditioning

26. Ultra-efficient Woodsman Kanaku 9kW wood burner for primary heating

27. On-demand gas hot water supported by two 18kg gas bottles

28. Advanced wastewater infrastructure featuring an Austin Bluewater ABS2000 septic system with 8-person capacity (approximately 1,600L/day)

29. Septic system positioned approximately 40-50 metres from the home to eliminate noise and odour, with the field located on a lower, flattened area

30. System capacity and placement allow for the potential addition of a minor dwelling in the future, subject to council requirements

31. Extensive site works completed, including significant excavation to achieve optimal elevation, views, and drainage

32. Comprehensive drainage design with French drains installed around three sides of the home to protect the platform

33. Land area of approximately 4,000m² with multiple usable and flat areas

34. Designated potential build zones suitable for future additions such as a sleepout, spa area, or secondary structures

35. Native planting programme underway, with hundreds of predominantly low-growing native plants established to integrate the home into the surrounding landscape over time

36. Dual driveway access, including one allowing practical access directly in front of the home during winter or snow conditions, with the bottom driveway useable for a trailer or motorhome

37. 4,000L water stormwater tank installed (non potable)

38. Fully connected with 4G internet and a comprehensive security system

39. Automatic exterior security lighting installed

40. Generous internal storage including built-in storage in the third bedroom and additional space under the stairs

Special Instructions for Viewing

Property is on a 4X4 only road.

Viewings are by appointment only.

Please ensure appropriate footwear due to the rural terrain and gravel access.

Access via dual driveways, with the upper access providing direct approach to the home.

Bilateral Intelligence Dashboard

Local lifestyle analysis powered by fragment-data synthesis

Active Market
Vibe Score
Tranquil • 0%

Our proprietary algorithm synthesizes local point-of-interest density, transit flow, and community engagement to determine the "lifestyle energy" of this coordinate.

Serenity Index
Sanctuary • 100%

Calculates tranquility potential by weighing proximity to open green space against major thoroughfare noise and commercial traffic patterns.

Lifestyle Premium Anchors

Gym/Fitness
Natural Health
28.8km
Boutique Cafe
Som Tam Coffee & Thai
27.2km
Dining
Mt Lyford Lodge
2.3km
Market
New World Kaikoura
44.3km
Transit Hub
Kaikoura
44.1km
Airport
Hanmer Springs Airport
27.8km
Medical
Kaikoura Healthcare
43.9km
Coastal Access
Kaikoura Beach
44.2km
🌿

AI Location Synthesis

Bilateral Identity Authenticated

RURAL

Regional Retreat: A tranquil sanctuary defined by vast landscapes and a peaceful, disconnected rhythm of life.

Boutique Social Scene: Enjoy local favorites like Som Tam Coffee & Thai, which serves as a premier local anchor for residents. Features al fresco dining.

Culinary Diversity: The local culinary landscape features diverse dining experiences a short drive from your door, headlined by well-regarded establishments like Mt Lyford Lodge.

Coastal Lifestyle: Pristine New Zealand coastlines at Kaikoura Beach are a short drive from home, offering unparalleled opportunities for recreation and natural serenity.

🌿
Balanced Lifestyle Seeker

Property Details

Property Type:
Lifestyle Property
Category:
sale
Street Address:
50 Terako Terrace, Mount Lyford Village 7395, New Zealand
Suburb:
Lyford
City:
Mount Lyford Village
Region:
Canterbury
Land Area:
4,000m²
Floor Area:
93m²
Floor to Land Ratio:
0.02 (Lower density)
Site Coverage:
2.33% of total land
Annual Property Rates:
$1,379
Building Efficiency:
31.00m² per bedroom

Key Dates

04
Apr
Open House — EXAMPLE Open Home
Saturday, April 4, 2026 • 11:30 AM - 11:45 AM
11
Apr
Open House — EXAMPLE Open Home
Saturday, April 11, 2026 • 11:30 AM - 11:45 AM
18
Apr
Open House — EXAMPLE Open Home
Saturday, April 18, 2026 • 11:30 AM - 11:45 AM
25
Apr
Open House — EXAMPLE Open Home
Saturday, April 25, 2026 • 11:30 AM - 11:45 AM
02
May
Open House — EXAMPLE Open Home
Saturday, May 2, 2026 • 11:30 AM - 11:45 AM
09
May
Open House — EXAMPLE Open Home
Saturday, May 9, 2026 • 11:30 AM - 11:45 AM
16
May
Open House — EXAMPLE Open Home
Saturday, May 16, 2026 • 11:30 AM - 11:45 AM
23
May
Open House — EXAMPLE Open Home
Saturday, May 23, 2026 • 11:30 AM - 11:45 AM
30
May
Open House — EXAMPLE Open Home
Saturday, May 30, 2026 • 11:30 AM - 11:45 AM
06
Jun
Open House — EXAMPLE Open Home
Saturday, June 6, 2026 • 11:30 AM - 11:45 AM

Agent Information

Agent Image

James Graham

Company Not Available
Website Not Available

Building Performance Details

Comprehensive property specifications and performance metrics

Energy Systems

Solar Power System

Not Installed

EV Charging

Not Available

Heating Systems

Log burner
Heat pump

Cooling Systems

Heat pump

Lighting

Led

Environmental Impact

Water Efficiency

High

Carbon Footprint

4,000 - 7,000 kg CO₂e per year kg CO2e/year

Sustainable Materials

N/A

Renewable Energy

Partial

Construction and Materials

Exterior Cladding

Thermally Modified Timber

Interior Cladding

Timber Panelling Timber Panelling
Mixed Type Walls Mixed Type Walls

Construction Type

Timber Weatherboard

Insulation and Glazing

Wall Insulation

R-4.00 Rating

Roof Insulation

R-7.30 Rating

AirTightness

2.00 ACH@50Pa

Airbnb Price Estimator

Estimated Rate
$350 - $425
Based on similar properties in the area

Rental Price Estimator

Estimated Rental Rate
$700 - $800
Based on similar properties in the area

Insurance Risk Rating

Has Insurance/Can Be Insured

This property is currently insured or eligible for insurance coverage

Based on location, building materials, and natural hazard exposure
Mortgage Calculator

Air Metrics

Air Quality Rating
Excellent
Grade A+
Air Replacement Time
Moderate
2 hours
Temperature Stability
Stable
High

Based on continuous monitoring and environmental sensors

Utilities & Services

Water Source

Council Supply

Sewerage System

Septic Tank

Power Supply

Mains Power

Internet Connection

Satellite

Based on council records and property documentation

Solar Exposure Metrics

Daily Sunlight
4-6 hours
4-6 hours / day
Seasonal Variation
High
High
Solar Potential
Moderate
Moderate

Based on annual solar studies
and site analysis

Thermal Performance Metrics

Heat Retention
High
High
Thermal Bridging
High
High
Temperature Differential
5°C
5°C

Based on thermal imaging and temperature monitoring

School Zones (50 KM)

Nearby Schools (50 KM)
Loading...
Loading nearby schools...
🏫
No Schools Found
We couldn't find any schools in the nearby area.

Property Documentation

Download available property documents

Essential Documents

Land Information Memorandum (LIM)

Required for property listing

Download

Sale & Purchase Agreement

REINZ Standard Form (Required)

Download

Additional Documents

Building Report

Independent Assessment

Download

Login Required

Login to see Property Documentation

Contact Selling Agent James Graham

Thank you! Your message has been sent successfully. The agent will contact you soon.
Error! Something went wrong. Please try again.
1 of 10
Property Image